Unit 205 Grove Phase 1, 250 Scott Lane
Important! To apply for this home, You must have completed the Online Intake Form prior to August 5, 2020.
Our office is open and we are happy to help you. To achieve social distancing, we encourage you to call us if you need help rather than coming into the office. If you do come into the office, please consider wearing a mask. Please upload your applications through our intake form. You can also email it or drop it in our mailbox outside our office door. Be sure to double check with us to make sure we received it. Thank you for your patience during this time of social distancing.
Occupancy Requirement to apply for this home: two or more people
Income Range to apply for this home: 50% to 80% of the Median Family Income
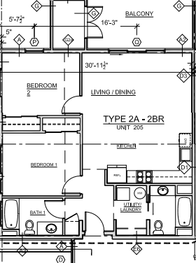
Unit 205: The Housing Department has a 2-bedroom, 2-bathroom unit available for rent, approximately 1,000 square feet, range, refrigerator, dishwasher, microwave, large deck, storage, and washer & dryer, NO PETS ALLOWED.
Monthly rental amount is $1,107. The rental term is estimated to begin mid-September 2020
The monthly rental amount includes electricity, water, sewer, and trash. First month’s rent and security deposit ($2,214) will be due at signing. The security deposit amount is $1,107.
Floor Plan for 205
Occupancy Requirement: two or more people.
Income Range: 50% to 80% of the Median Family Income
Households that earn 50% to 80% of the Median Family Income for Teton County may enter the weighted drawing. That means to be eligible to enter the drawing for this rental, your household’s gross income (before taxes) must fit into the range listed below:
Two Person Household: $44,280 to $70,848
Three Person Household: $49,815 to $79,704
Four Person Household: $55,350 to $88,560
Five Person Household: $59,778 to $95,645
Six Person Household: $64,206 to $102,730
Calculation of Income:
Household income is based on the current income earned by all intended adult occupants of the rental unit at the time of weighted drawing using the current household income to estimate an annual (12 month) income basis. Households must use their current income and may not make changes or adjustments to earnings in order to fit within the income range.
Business income of a qualifying Household is calculated using an average of the last three (3) years of income on the business’ tax returns. A year to date profit and loss determination will also be used to calculate business income. If the business has not been operating for three (3) years, the Housing Department will average income over the time the business has been operating.
Eligibility Requirements:
Please read the policies in effect to enter any weighted drawing: Housing Department Rules & Regulations, Section 4: Weighted Drawing
Weighted Drawing Entry Eligibility Highlights:
The Housing Department Online Intake Form must be filled out and submitted to enter this or any drawing. If you have not submitted an Intake form prior to the beginning of this drawing (August 5th) you will not be eligible to apply.
Important to note: Please do not make any changes to the essential data on the online intake form during a weighted drawing period or you will not be eligible to apply.
At least one adult in the household must be employed full-time in Teton County for a minimum of one year. The Housing Department defines full-time employment as working a minimum of 1,560 hours per year (30 hours/week average).
Deadline to Apply: Tuesday, August 18th by 4:00 p.m. No late or incomplete entries will be accepted. If selected first for this unit you will be notified by phone. All others will be sent an email notice.
All forms need to enter into this weighted drawing are here, under "Rentals - Weighted Drawing Entry Forms".
We understand that our applications to enter into the weighted drawing take time and effort, and we do not want to disqualify you due to an oversight or misunderstanding about our process. Please bring your applications in prior to the due date so that we have time to work with you, make corrections, and give feedback if anything is wrong.
Esto fue traducido usando google translate. Por favor disculpe cualquier error. Para obtener ayuda con las traducciones, comuníquese con One22, 307-739-4500.
¡Importante! Para solicitar esta casa, debe haber completado el Formulario de admisión en línea antes del 5 de agosto de 2020.
Nuestra oficina está abierta y estamos encantados de ayudarlo. Para lograr el distanciamiento social, le recomendamos que nos llame si necesita ayuda en lugar de venir a la oficina. Si entra a la oficina, considere usar una máscara. Cargue sus solicitudes a través de nuestro formulario de admisión. También puede enviarlo por correo electrónico o dejarlo en nuestro buzón fuera de la puerta de nuestra oficina. Asegúrese de verificar con nosotros para asegurarse de que lo hayamos recibido. Gracias por su paciencia durante este tiempo de distanciamiento social.
Requisito de ocupación para solicitar esta casa: dos o más personas
Rango de ingresos para solicitar este hogar: 50% a 80% del ingreso familiar promedio
Unidad 205: El Departamento de Vivienda tiene una unidad de 2 dormitorios y 2 baños disponible para alquilar, aproximadamente 1,000 pies cuadrados, cocina, refrigerador, lavaplatos, microondas, terraza grande, almacenamiento, y lavadora y secadora, NO SE ADMITEN MASCOTAS.
El monto del alquiler mensual es de $ 1,107. Se estima que el plazo de alquiler comenzará a mediados de septiembre de 2020
El monto del alquiler mensual incluye electricidad, agua, alcantarillado y basura. El primer mes de alquiler y depósito de seguridad ($ 2,214) se pagará al momento de la firma. El monto del depósito de seguridad es de $ 1,107.
Plano de planta para 205
Requisito de ocupación: dos o más personas.
Rango de ingresos: 50% a 80% del ingreso familiar medio
Los hogares que ganan del 50% al 80% de los ingresos familiares medios para el condado de Teton pueden ingresar al sorteo ponderado. Eso significa que para ser elegible para participar en el sorteo de este alquiler, el ingreso bruto de su hogar (antes de impuestos) debe ajustarse al rango que se detalla a continuación:
Hogar de dos personas: $ 44.280 a $ 70.848
Hogar de tres personas: $ 49,815 a $ 79,704
Hogar de cuatro personas: $ 55,350 a $ 88,560
Hogar de cinco personas: $ 59,778 a $ 95,645
Hogar de seis personas: $ 64,206 a $ 102,730
Cálculo de ingresos:
Los ingresos del hogar se basan en el ingreso actual ganado por todos los ocupantes adultos previstos de la unidad de alquiler en el momento del sorteo ponderado utilizando el ingreso actual del hogar para estimar una base de ingresos anual (12 meses). Los hogares deben usar sus ingresos actuales y no pueden hacer cambios o ajustes a las ganancias para ajustarse al rango de ingresos.
Los ingresos comerciales de un hogar calificado se calculan utilizando un promedio de los últimos tres (3) años de ingresos en las declaraciones de impuestos de la empresa. La determinación de ganancias y pérdidas del año hasta la fecha también se utilizará para calcular los ingresos del negocio. Si el negocio no ha estado operando por tres (3) años, el Departamento de Vivienda tendrá un ingreso promedio durante el tiempo que el negocio ha estado operando.
Requisitos de elegibilidad:
Lea las políticas vigentes para ingresar a cualquier sorteo ponderado: Housing Department Rules & Regulations, Section 4: Weighted Drawing (Reglas y Regulaciones del Departamento de Vivienda, Sección 4: Sorteo ponderado. Para obtener ayuda con las traducciones, comuníquese con One22, 307-739-4500)
Weighted Drawing Entry Eligibility Highlights:
El formulario de admisión en línea del Departamento de Vivienda debe completarse y enviarse para ingresar a este o cualquier sorteo. Si no ha enviado un formulario de admisión antes del comienzo de este sorteo (5 de agosto), no será elegible para aplicar.
Importante tener en cuenta: No realice ningún cambio en los datos esenciales en el formulario de admisión en línea durante un período de sorteo ponderado o no será elegible para aplicar.
Al menos un adulto en el hogar debe estar empleado a tiempo completo en el Condado de Teton por un mínimo de un año. El Departamento de Vivienda define el empleo a tiempo completo como trabajar un mínimo de 1,560 horas por año (promedio de 30 horas / semana).
Fecha límite para presentar la solicitud: martes 18 de agosto a las 4:00 p.m. No se aceptarán entradas tardías o incompletas. Si se selecciona primero para esta unidad, se le notificará por teléfono. Todos los demás recibirán un aviso por correo electrónico.
Todos los formularios necesarios para ingresar en este sorteo ponderado están aquí,en "Rentals - Weighted Drawing Entry Forms" ("Alquileres - Formularios de ingreso de sorteo ponderado").
Entendemos que nuestras solicitudes para participar en el sorteo ponderado requieren tiempo y esfuerzo, y no queremos descalificarlo debido a un descuido o malentendido sobre nuestro proceso. Presente sus solicitudes antes de la fecha de vencimiento para que tengamos tiempo de trabajar con usted, hacer correcciones y dar su opinión si algo está mal.