grove phase 1 Unit 310, 250 Scott Lane
Important! To apply for this home, You must have completed the Online Intake Form prior to June 3, 2020.
Our office is open and we are happy to help you. To achieve social distancing, we encourage you to call us if you need help rather than coming into the office. If you do come into the office, please consider wearing a mask. Please upload your applications through our intake form. You can also email it or drop it in our mailbox outside our office door. Be sure to double check with us to make sure we received it. Thank you for your patience during this time of social distancing.
Occupancy Requirement to apply for this home: three or more people
Income Range to apply for this home: 0% to 50% of the Median Family Income
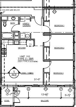
Unit 310: The Housing Department has a 3-bedroom, 1-bathroom unit available for rent, approximately 1,000 square feet, range, refrigerator, dishwasher, microwave, large deck, storage, and washer & dryer, NO PETS ALLOWED.
Monthly rental amount is $745. The rental term is estimated to begin September 2020
The monthly rental amount includes electricity, water, sewer, and trash. First month’s rent and security deposit ($1,745) will be due at signing. The security deposit amount is $1,000.
Floor Plan for 310
Occupancy Requirement: three or more people.
Income Range: 0% to 50% of the Median Family Income
Households that earn 0% to 50% of the Median Family Income for Teton County may enter the weighted drawing. That means to be eligible to enter the drawing for this rental, your household’s gross income (before taxes) must fit into the range listed below:
Three Person Household: $0 to $49,815
Four Person Household: $0 to $55,350
Five Person Household: $0 to $59,778
Six Person Household: $0 to $64,206
Calculation of Income:
Household income is based on the current income earned by all intended adult occupants of the rental unit at the time of weighted drawing using the current household income to estimate an annual (12 month) income basis. Households must use their current income and may not make changes or adjustments to earnings in order to fit within the income range.
Business income of a qualifying Household is calculated using an average of the last three (3) years of income on the business’ tax returns. A year to date profit and loss determination will also be used to calculate business income. If the business has not been operating for three (3) years, the Housing Department will average income over the time the business has been operating.
Eligibility Requirements:
Please read the policies in effect to enter any weighted drawing: Housing Department Rules & Regulations, Section 4: Weighted Drawing
Weighted Drawing Entry Eligibility Highlights:
The Housing Department Online Intake Form must be filled out and submitted to enter this or any drawing. If you have not submitted an Intake form prior to the beginning of this drawing (June 3rd) you will not be eligible to apply.
At least one adult in the household must be employed full-time in Teton County for a minimum of one year. The Housing Department defines full-time employment as working a minimum of 1,560 hours per year (30 hours/week average).
Deadline to Apply: Tuesday, June 16th by 4:00 p.m. No late or incomplete entries will be accepted. If selected first for this unit you will be notified by phone. All others will be sent an email notice.
All forms need to enter into this weighted drawing are here, under "Rentals - Weighted Drawing Entry Forms".
We understand that our applications to enter into the weighted drawing take time and effort, and we do not want to disqualify you due to an oversight or misunderstanding about our process. Please bring your applications in prior to the due date so that we have time to work with you, make corrections, and give feedback if anything is wrong.
Esto fue traducido usando google translate. Por favor disculpe cualquier error. Para obtener ayuda con las traducciones, comuníquese con One22: 307-739-4500
Requisito de ocupación para solicitar esta casa: tres o más personas
Rango de ingresos para solicitar esta casa: 0% a 50% del ingreso familiar promedio
Unidad 310: El Departamento de Vivienda tiene una unidad de 3 dormitorios y 1 baño disponible para alquilar, aproximadamente 1,000 pies cuadrados, cocina, refrigerador, lavaplatos, microondas, terraza grande, almacenamiento y lavadora y secadora, NO SE ADMITEN MASCOTAS.
El monto del alquiler mensual es de $ 745. Se estima que el plazo de alquiler comenzará en septiembre de 2020
El monto del alquiler mensual incluye electricidad, agua, alcantarillado y basura. El primer mes de alquiler y depósito de seguridad ($ 1,745) se deberá pagar al momento de la firma. El monto del depósito de seguridad es de $ 1,000.
Plano de planta para 310
Requisito de ocupación: tres o más personas.
Rango de ingresos: 0% a 50% del ingreso familiar promedio
Los hogares que ganan del 0% al 50% de los ingresos familiares medios para el condado de Teton pueden ingresar al sorteo ponderado. Eso significa que para ser elegible para participar en el sorteo de este alquiler, los ingresos brutos de su hogar (antes de impuestos) deben ajustarse al rango que se detalla a continuación:
Hogar de tres personas: $ 0 a $ 49,815
Hogar de cuatro personas: $ 0 a $ 55,350
Hogar de cinco personas: $ 0 a $ 59,778
Hogar de seis personas: $ 0 a $ 64,206
Cálculo de ingresos:
El ingreso del hogar se basa en el ingreso actual ganado por todos los ocupantes adultos previstos de la unidad de alquiler en el momento del sorteo ponderado utilizando el ingreso actual del hogar para estimar una base de ingresos anual (12 meses). Los hogares deben usar sus ingresos actuales y no pueden hacer cambios o ajustes a las ganancias para ajustarse al rango de ingresos.
Los ingresos comerciales de un hogar calificado se calculan utilizando un promedio de los últimos tres (3) años de ingresos en las declaraciones de impuestos de la empresa. Una determinación de pérdidas y ganancias del año hasta la fecha también se utilizará para calcular los ingresos del negocio. Si el negocio no ha estado operando por tres (3) años, el Departamento de Vivienda promediará el ingreso durante el tiempo que el negocio ha estado operando.
Requisitos de elegibilidad:
Lea las políticas vigentes para ingresar a cualquier sorteo ponderado: Housing Department Rules & Regulations, Section 4: Weighted Drawing (Reglas y Regulaciones del Departamento de Vivienda, Sección 4: Sorteo ponderado) Para obtener ayuda con las traducciones, comuníquese con One22: 307-739-4500
Puntos destacados de elegibilidad de entrada de sorteo ponderado:
El formulario de admisión en línea del Departamento de Vivienda debe completarse y enviarse para ingresar a este o cualquier sorteo. Si no ha enviado un formulario de admisión antes del comienzo de este sorteo (3 de junio), no será elegible para aplicar.
Al menos un adulto en el hogar debe estar empleado a tiempo completo en el Condado de Teton por un mínimo de un año. El Departamento de Vivienda define el empleo a tiempo completo como trabajar un mínimo de 1,560 horas por año (promedio de 30 horas / semana).
Fecha límite para presentar la solicitud: martes 16 de junio a las 4:00 p.m. No se aceptarán entradas tardías o incompletas. Si se selecciona primero para esta unidad, se le notificará por teléfono. Todos los demás recibirán un aviso por correo electrónico.
Todos los formularios necesarios para ingresar en este sorteo ponderado están aquí, en "Rentals - Weighted Drawing Entry Forms". ("Alquileres - Formularios de ingreso de sorteo ponderado").
Entendemos que nuestras solicitudes para ingresar al sorteo ponderado requieren tiempo y esfuerzo, y no queremos descalificarlo debido a un descuido o malentendido sobre nuestro proceso. Presente sus solicitudes antes de la fecha de vencimiento para que tengamos tiempo de trabajar con usted, hacer correcciones y dar su opinión si algo está mal.